Bruck + Weckerle Architekten
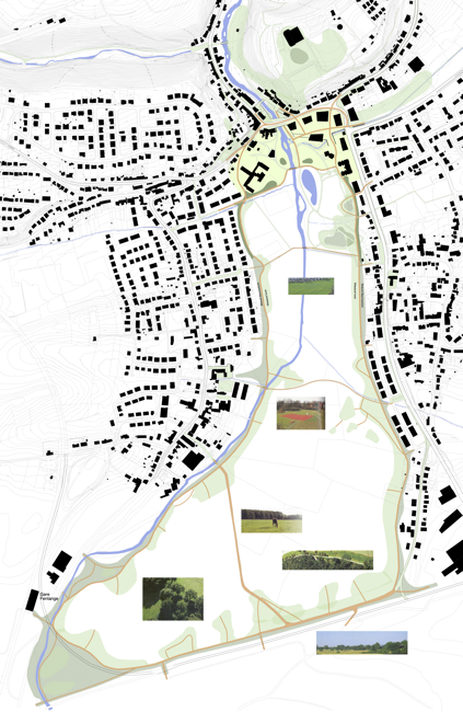
Hesperange
News
Projekte
Büro
Publikationen
Kontakt
Team